O Villa Tanah nasceu da busca de um local para retiros, meditação e conexão com a natureza.
Encontramos uma área de 10 alqueires de mata nativa, trilhas, cachoeiras, lagos e flora exuberante, onde já havia algumas construções, portanto, nosso partido foi integrar ao máximo o construído e o existente, fundir formas e cores à esta paisagem incrível.
Atendendo ao programa projetamos:
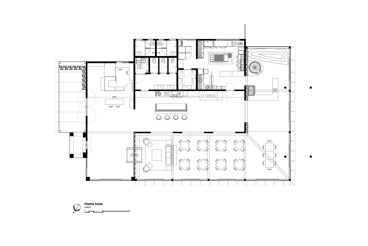
- Sede com recepção e restaurante com 365m².
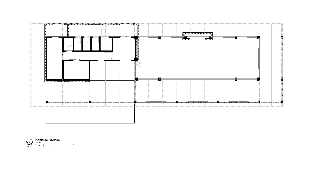
- O Pavilhão para eventos com 361m².
- Casa de hóspedes com 333m².
Norteados pela arquitetura biofílica, sempre buscando bem-estar físico, mental e espiritual, agregamos ao conjunto uma gama de materiais naturais, dentre eles as pedras da região, madeira de demolição e revestimento em massa mineral, além de formas simples, pérgolas e grandes aberturas em vidro e ferro, interligando o interno ao externo, o dentro e fora, corpo, casa e natureza, templos de contemplação.
Villa Tanah – Rosana Buonerba Arquitetura
https://rosanabuonerba.myportfolio.com
Arquitetura: Rosana Buonerba Arquitetura
Design de interiores: Marcelo Salum
Fotografias: Christian Maldonado
Ano 2022.
Localidade: São Roque – SP, Brasil
Fabricantes: De Fragoso texturas
Studio N mobili
Sarralheria Tonholoso
_______________________________________________________________________

Sede 365m²















_______________________________________________________________________
PAVILHÃO 361m²














_______________________________________________________________________
CASA HÓSPEDES 333m²











_______________________________________________________________________
IMPLANTAÇÃO
